SERVICES
Davis Stokes Collaborative Architects provides a full range of architectural services:
PROGRAMMING
It all starts with a need. What are your specific needs? We are here to listen to you, and we will work to develop a program that fits your needs. Do you have a square footage in mind, but are unsure how to fill the space? We can use our years of space-planning experience to help you arrive at a program that makes sense. Do you already have a program, but are unsure of how it will translate to buildable space? We have you covered there as well.
PRELIMINARY CODE ANALYSIS
Let Davis Stokes Collaborative navigate the complex and often tricky world of code compliance— from Accessibility, to Fire Protection, to local Ordinances, to Guidelines for Healthcare Construction. We can help make sure that your project is compliant with current local and state regulations, as well as facility-use guidelines.
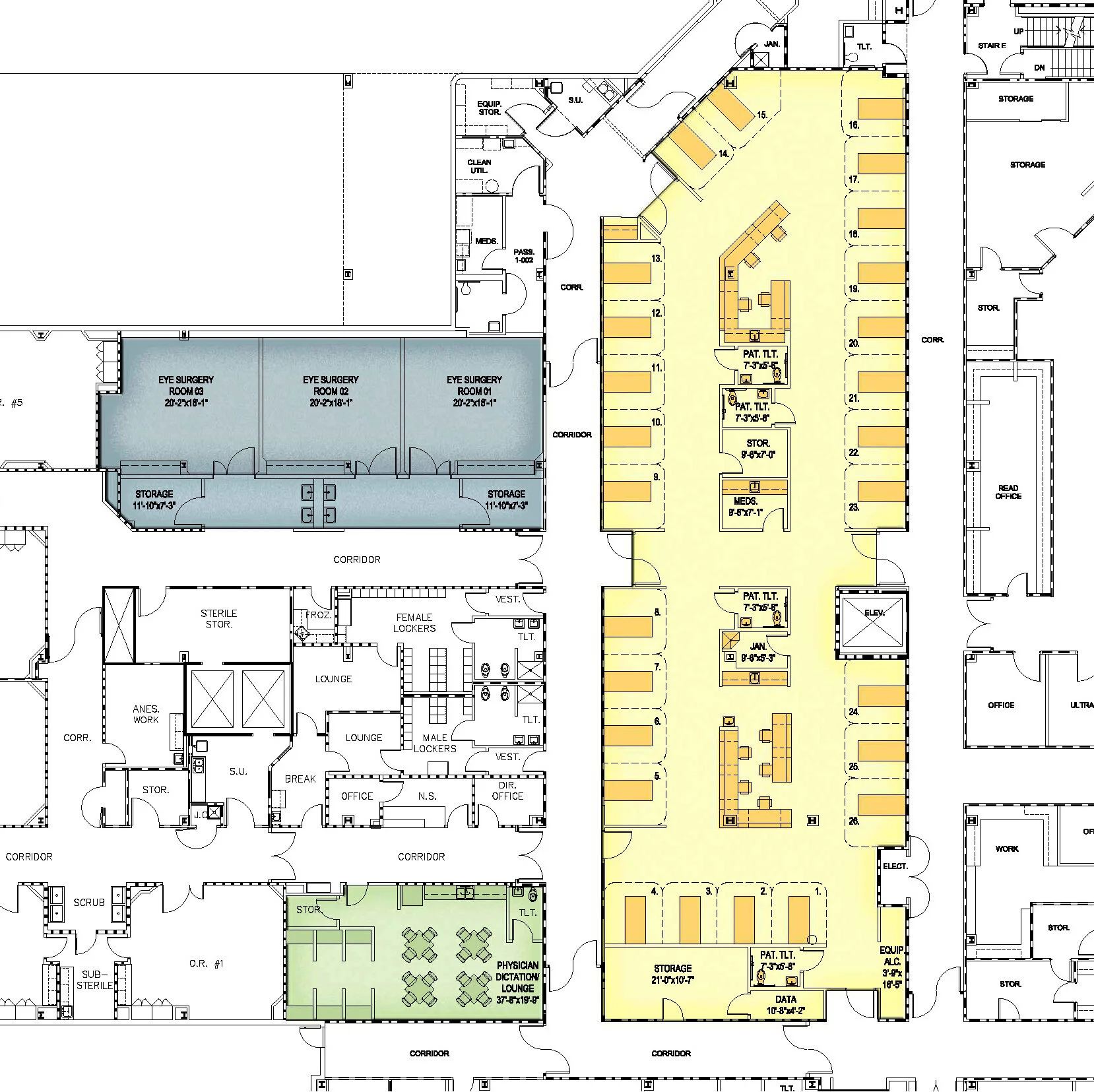
ARCHITECTURAL RENDERINGS AND 3D MODELS
Need a visual? Our office is capable of producing professional quality 3D renderings, whether it is of a site master plan, an exterior building view, an interior view of a main lobby, or perhaps an interior view of an operating room layout. We are also able to work with leading companies in the Virtual Reality world upon request.
SCHEMATIC DESIGN AND DESIGN DEVELOPMENT
We believe that every good project begins with a face-to-face discussion about your goals and needs. Our team is ready to help define the aesthetic, square footage, circulation, floor plan layout, etc., at the earliest stages of the project.
CONSTRUCTION DOCUMENTS
Once the client is ready to move forward, Davis Stokes will put together a full set of stamped and sealed plans and specifications that are ready to be given to the contractor. This is a key component of the process, where decisions and details become finalized and put to paper.
CONSTRUCTION ADMINISTRATION
Now that the shovel has hit the ground, our team is ready to assist with submittal approvals, site visits, reviewing pay apps, and other responsibilities that come with the construction process.
THIRD PARTY REVIEW
Sometimes it’s helpful to have an extra set of eyes. Send us your drawings, we’ll take a look.
BIDDING AND NEGOTIATION ASSISTANCE
We also provide a bidding and negotiation service if you need assistance with activities such as soliciting bids, identifying prospective contractors, and evaluating proposals.

 
                       
             
             
             
             
             
             
            